Get Floor Narrow Small Bathroom Layout Pictures

Get Floor Narrow Small Bathroom Layout Pictures. Gather design ideas for narrow bathrooms with these 24 small bathrooms that maximise space in limited floor areas with clever design features. With the plumbing in two walls, layouts like these will typically cost more.

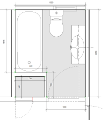
21 Bathroom Floor Plans For Better Layout
21 Bathroom Floor Plans For Better Layout from www.sunrisespecialty.com
Especially in a small bathroom with only 1 door. Bathroom plans laundry in bathroom how to plan bathroom flooring small bathroom master bathroom layout bathroom makeover floor learn about the different small bathroom layout ideas from an expert and design a bathroom that optimizes space without compromising comfort and. Design storage units that float, says beth dadswell of.

Poor lighting can create a feeling of a narrow space.

This is an efficient bathroom, and, it just plain works. Narrow bathrooms can feel frustrating, because they have a high square footage but not much leeway in layout. Gather ideas from these narrow bathrooms with. Check out these small bathroom floor plans to find an arrangement that will work for you.